DIJUAL/DISEWAKAN
Ruko Gandeng 3
Kemanggisan
Jakarta - Barat
Cocok : Fitness, kost, kantor, mini market, salon, bengkel, kantor.
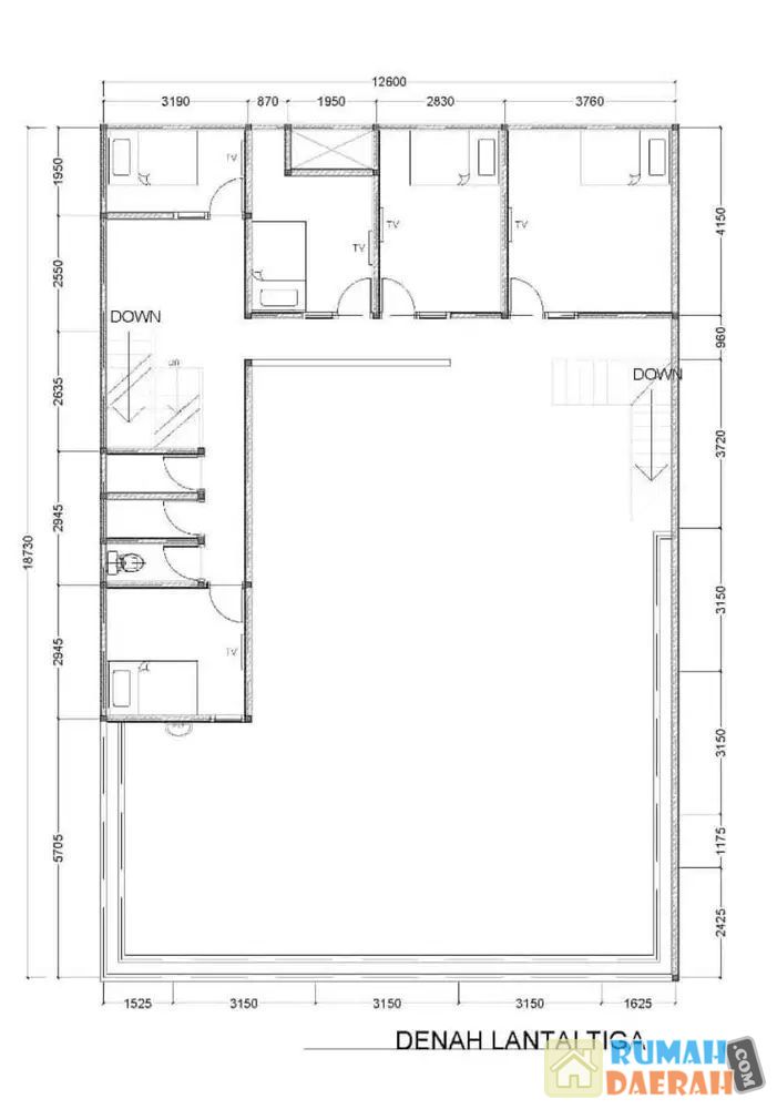
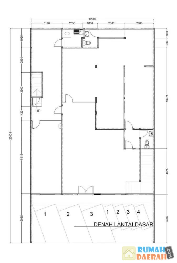
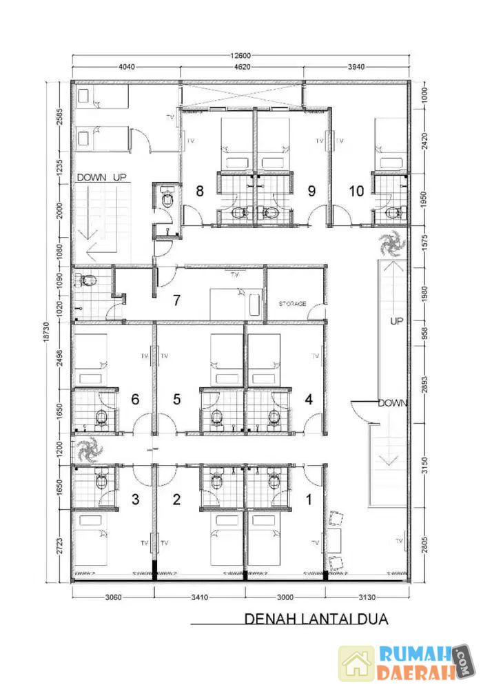
Bangunan : 2 lantai
 : 277m
 : 700m
Akses : Jalan raya
Hadap : Selatan
Listrik : 23000 watt
Telephone : 2 lines
Air : Pam + Tanah (Jet pump)
Surat : Hak Milik
Min sewa 2thn
| Luas Tanah | 277 M2 | 
|---|---|
| Luas Bangunan | 700 M2 | 
 Sherly Levina Salim
            Anggota sejak 1 tahun yang lalu
            Sherly Levina Salim
            Anggota sejak 1 tahun yang lalu