thumbnail-di-jual-8-unit-rumah-baru-di-sayap-setra-duta-0
thumbnail-di-jual-8-unit-rumah-baru-di-sayap-setra-duta-1

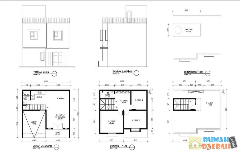
Di Jual 8 Unit Rumah Baru Di Sayap Setra Duta

Diperbarui pada 5 Februari 2024 oleh Lung Lung
Rp. 1.1 miliar

Jual 8 unit rumah baru di sayap setra duta jl bukit sariwangi
Ready 4 unit April 2024
2.5 lantai ada rooftop
LT 64m LB 135m
Kamar tidur 3 Kamar mandi 2
Lebar muka 8m
Material:
Lantai Granitile 60x60, Sanitasi TOTO, kusen aluminium, Bangunan Beton bertulang, Atap baja ringan
Harga
More Info :
Lung lung Maxpro
08179660888
Sun


Spesifikasi

Kompleks setra duta
Luas Tanah 64 M2
Luas Bangunan 135 M2
Kamar tidur 3
Kamar mandi 2

Loading...

Data Kunjungan & Kontak 7 Hari Terakhir

Properti Terkait

Druhomes
© 2026 by RumahDaerah | Halaman dimuat dalam: 0.179 detik