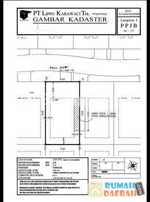
Tanah Dijual Tangerang Kavling di Lippo Karawaci Central Tangerang Luas 288 Kotak Badan Jarang ada Lokasi sangat strategis Dekat sekolah dan universitas -UPH -SPH -SDH
Kavling Cantik Lokasi Bagus Luas 448 Di Sutera Amarylis Hoek .yl
DIJUAL KAVLING TANAH LOKASI STRATEGIS Di BSD
Terima Shm Tanah Kavling, Dekat Pasat Modern Intermoda Bsd City
DIJUAL CEPAT KAVLING SI VERMONT BSD
Dijual Kavling Serpong Garden cluster Green Park
Kavling Commercial Depan CBD PIK 2
Kavling Kawasan Exclusive,taman Tirta Golf Bsd Tangerang
Hrga Murah & B.U kavling Badan Di Villa Serpong BSD City
Turun Harga Kavling Bagus Hook di Sutera Amarylis Alam Sutera
Kavling depan taman Boulevard di Anggrek Loka BSD City
Kavling di area the icon bsd cluster verdant ville
Jual Beberapa Kavling Industri Pasar Kemis Tangerang
Kavling Kencana Loka BSD
Kavling Siap Bangun Posisi Badan Cluster Tiara PHG Gading Serpong
Kavling Badan di Sutera Jelita Alam Suter
Jual Cepat Kavling Victoria
Kavling Siap Bangun Posisi Hook Di Cluster Verdant Ville Bsd
Kavling Komersil Pondok Cabe Hitung Tanah Sudah Ada Bangunan Mcd Dan Superindo
Kavling Perumahan Siap Bangun 12x54 645m De Heliconia Bsd Serpong
Kavling Hoek Siap Bangun Di Cluster Cajuputih De Park Bsd
Kavling Huk Utama foresta Albera Bsd Harga Bagus Nyaman Asri
KAVLING TANAH PUSPITA LOKA LOKASI NYA NYAMAN DAN ASRI
Kavling commercial BSD lokasi strategis
Kavling siap bangun dekat padang golf BSD