Lokasi Strategis Dekat Universitas, Mall, Perkantoran Progress 75% Untuk Survey dan informasi lengkap mohon hubungi : RICKY HUTAGAOL 0813 8080 6463 PROPERTYRICH
Turun Harga!! Kos Aktif Di Tawakal Grogol
Rumah kos di area Mall, perkantoran dan apartemen belakang central park
Beli rumah kos bonus 2 kios 1 warteg dekat CBD Podomoro city, Taman angrek dan
Dijual Kost Cantik 3 Lantai Full Furnish di Tomang, Jakarta Barat
Kos Baru 21 Kamar di Tj. Duren dekat Central Park
Rumah Kos di Jalan Tanjung Duren Barat, Grogol Petamburan - Jakarta Barat
Dijual Kost-kostan Daerah Tanjung Gedong
Dijual kost 100% full , lokasi sangat strategis
Kos 31 KT Strategis Di Tawakal Dekat Trisakti Grogol Jakbar
Sell Rumah Kosan: DI Jual Rumah Kost
DIJUALK Kost Tomang View Residence (TVR) adalah Kost super Nyaman
Jual Rumah Indekost Kosan Kost Grogol Belakang Untar
DIJUAL KOST DG ROI TINGGI Di TOMANG GROGOL
Dijual Indekos 42 Pintu Murah
Dijual Rumah Kost Lokasi Strategis Di Tomang Jakarta Barat
Dijual Rumah Kost Full Furnish
kos aktif dekat Trisakti dan Untar Grogol, Jakarta Barat ( PR)
Dijual kost dekat kampus untar & trisakti, grogol, jakarta barat.
Kost baru, fas hotel bintang, tersedia parkir di Tomang, ga20521cs
Kosan 5 lantai murah diTomang,Jakbar
D jual rumah kost d tomang
Di Jual Kost Bagus di Jakarta Full Terisi
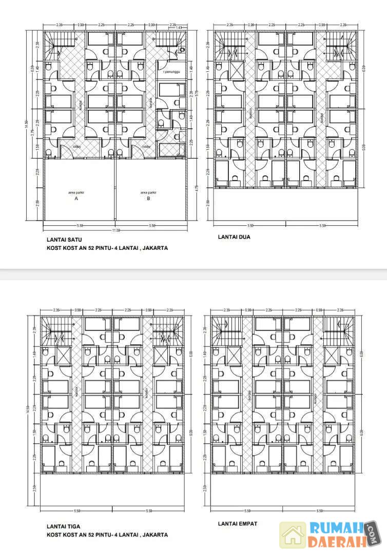
(A)KO52 Kost Di Grogol Petamburan, Jakarta Barat