Cukup Booking saja 4 Juta Tanpa DP, Sudah All in Langsung di Proses Sampai Akad dan Serah Terima Kunci.
Qonita 38 Residence
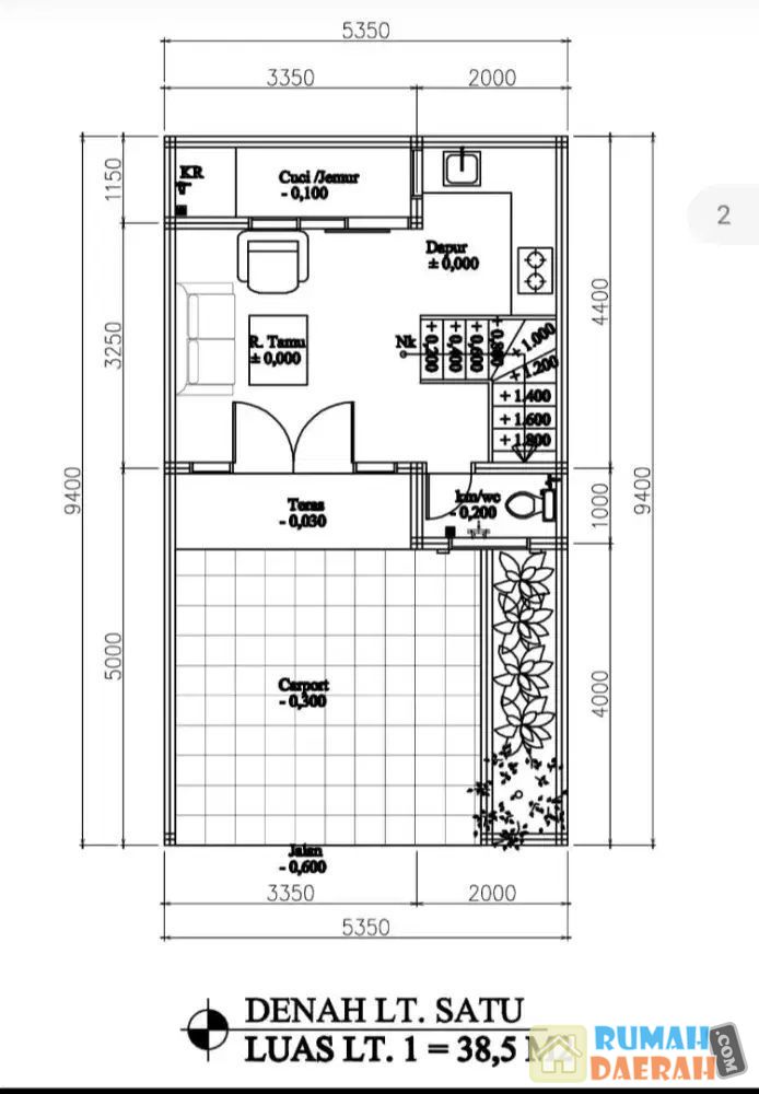
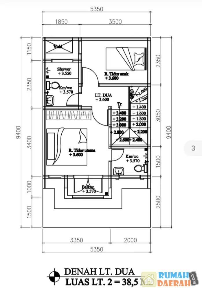
LT 70 m²
LB 80 m²
KT 3
KM 3
Lokasi di Raden Saleh Kota Depok
FREE :
Biaya KPR, Biaya Notaris, SHM, IMB, Balik Nama, Asuransi Jiwa & Kebakaran, BPHTB, PPN, AJB, PBB dan Biaya Lainnya
Bonus :
Kanopi, AC 1pcs, Toren, Mesin Air, Garansi Bangunan 3 bulan
Noted :
1. Pembayaran Cash masih dapat diskon
2. Booking akan kembali 100 % apabila KPR di tolak pihak BANK
3. Proses KPR Di Bantu Sampai Akad
| Luas Tanah | 70 M2 | 
|---|---|
| Luas Bangunan | 80 M2 | 
| Kamar tidur | 2 | 
| Kamar mandi | 3 | 
 aris qonita property depok
            Anggota sejak 1 tahun yang lalu
            aris qonita property depok
            Anggota sejak 1 tahun yang lalu