thumbnail-rumah-baru-metland-puri-hook-2-lantai-0
thumbnail-rumah-baru-metland-puri-hook-2-lantai-1
thumbnail-rumah-baru-metland-puri-hook-2-lantai-2

RUMAH BARU METLAND PURI HOOK 2 LANTAI

Diperbarui pada 18 Juli 2024 oleh Marvin Widyanata
Rp. 2.65 miliar

Rumah Dijual Jakarta Barat DIJUAL RUMAH BARU HOOK DI METLAND PURI
2 LANTAI POSISI HOOK
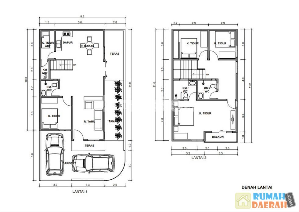
DIMENSI 8,5 x 15
LUAS TANAH: 127,5 M2
LUAS BANGUNAN: 168 M2
BAGIAN DEPAN HADAP BARAT
BAGIAN KIRI HADAP SELATAN
KAMAR TIDUR: 4+1
KAMAR MANDI 3+1
CARPORT: 2
LISTRIK 3500W
AIR PAM & SUMUR
LOKASI STRATEGIS
DEKAT AKSES TOL GREEN LAKE CITY
RS MANDAYA ROYAL PURI
ONE DISTRICT PURI
LIPPO MALL PURI
MALL PURI INDAH
SEKOLAH
DIJUAL: 2,65M (NEGO)


Spesifikasi

Kompleks metland puri
Luas Tanah 127 M2
Luas Bangunan 168 M2
Kamar tidur 5
Kamar mandi 4

Loading...

Data Kunjungan & Kontak 7 Hari Terakhir

Properti Terkait

Rp. 2.3 miliar
90m2 100m2 4 2
1 tahun yang lalu
Rp. 6.5 miliar
144m2 330m2 4 3
1 tahun yang lalu
Rp. 7.5 miliar
424m2 600m2 5 4
1 tahun yang lalu
Rp. 1.8 miliar
90m2 150m2 4 2
1 tahun yang lalu
Druhomes
© 2026 by RumahDaerah | Halaman dimuat dalam: 0.161 detik