Data 000 0544
Disewakan Cepat rumah 
untuk ruang usaha Pasar Rebo, 
Cibubur Jakarta Timur 
Lebar muka 8,50m 
Panjg 32m
listrik 1300 watt 
Rumah samping apartmen tetanium square
bisa di rombak sesuai keinginan penyewa minim sewa 
3 - 5 thn 
harga sewa 285jt/thn
Man//Drctibindr-ll
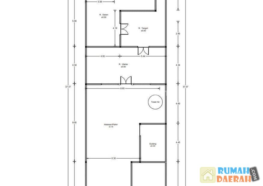
| Luas Tanah | 200 M2 | 
|---|---|
| Luas Bangunan | 272 M2 | 
| Kamar mandi | 2 | 
 Fandi
            Anggota sejak 1 tahun yang lalu
            Fandi
            Anggota sejak 1 tahun yang lalu